深圳市金鴻達傳動設備有限公司
台灣北機減速機有限公司
服務熱線:13509620880
電話:0755-29629972
E-MAIL:szjhdcd@126.com
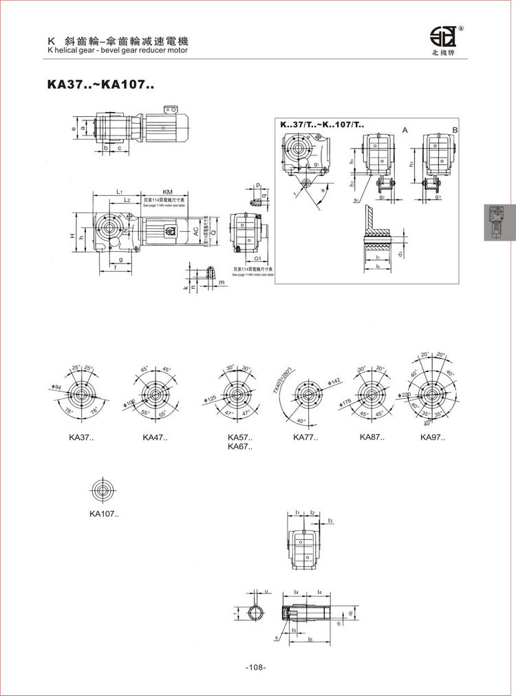
伞齿轮-斜齿轮减速电机采用电机直联形式,结构为一级斜齿轮加一级蜗轮蜗杆传动。输出为轴装式,具有六种基本安装形式。可正反转运转,斜齿轮采用硬齿面,运转平稳,承载能力大,工作环境温度-10℃~40℃,该产品与同类产品比具有速度变化范围大,结构紧凑,安装方便等特点。
KA减速机尺寸图

KA减速机尺寸图
